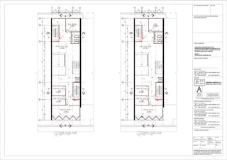
Rekabentuk Pelan Balai Bomba
Merancang keperluan dan penempatan alat kelengkapan bagi kegunaan jabatan. Kategori premis ditetapkan adalah seperti jadual berikut- JADUAL.
Balai Bomba Berusia 111 Tahun Dijenama Semula Sebagai Hotspot Pelancong.
Rekabentuk pelan balai bomba. Perkembangan terkini mengenai balai bomba tersebut telah dinyatakan oleh Menteri Muda Kerajaan Tempatan Datu Dr Penguang Manggil semasa menjawab soalan dari ADUN 59. Jabatan Bomba dan Penyelamat Malaysia. Pili bomba awam tidak bermeter hendaklah dicat dengan warna signal red manakala pili bomba swasta bermeter dicat dengan warna kuning.
Menyediakan pelan-pelan induk bagi pelbagai jenis balai bomba rumah kediaman dan kemudahan lain. Anggota dari balai bomba dan. Pakej Rumah Lot Banglo di Gual Nering Rantau Panjang terdapat sebanyak 9 lot banglo dengan keluasan tanah minima 5134 kaki persegi yang mana cukup berbaloi.
A Arahan mengemukakan pelan bagi projek perumahan ketinggian 18 meter dan melebihi ke Ibu Pejabat Jabatan Bomba dan Penyelamat Malaysia Putrajaya. Jumlah pelan-pelan yang perlu dikemukakan hendaklah dua perenggu. Jumlah pelan-pelan yang perlu dikemukakan hendaklah dua perenggu.
Surat Jabatan Bomba dan Penyelamat Negeri Pulau Pinang ruj. Jabatan Kawalan Bangunan MBS wajib Nota. Balai Bomba dan Penyelamat Damansara Utama Jalan SS 22 47300 Petaling Jaya Selangor.
Jabatan Bomba Dan Penyelamat Malaysia wajib SET KEPERLUAN TEKNIKAL UNTUK PERMOHONAN KELULUSAN PELAN BANGUNAN UNTUK RUMAH SESEBUAH BANGLO DAN JIKA BERKAITAN Bil Perkara PSP 1. Kategori Pemprosesan Pelan Teknikal dan Pengeluaran Surat Pelepasan oleh Jabatan Bomba Dan Penyelamat Malaysia. August 06 2019 - 0700 PM.
Kategori Pemprosesan Pelan Teknikal dan Pengeluaran Surat Pelepasan oleh Jabatan Bomba Dan Penyelamat Malaysia 1. Ruang landskap yang terhaad di Balai Polis SEA Park. Reka Bentuk 59 A44 Bangunan Jabatan Bomba Dan Penyelamat 62 Pengenalan 62 Balai Bomba dan Penyelamat 63 A50 BANGUNAN MAHKAMAH 66 51 Pengenalan 66 52 Perancangan dan Reka Bentuk 66 A60 BANGUNAN KEDUTAAN 70 61 Pengenalan 70.
Perakuan Bomba PERAKUAN BOMBA Perakuan bomba adalah suatu sijil yang dikeluarkan kepada premis yang dikategorikan sebagai premis ditetapkan. Mana-mana premis yang mengendalikan memproses atau menyimpan bahan-bahan bahaya hendaklah diadakan tanda khas mengikut simbol Hazchem. Adakan sistem talian terus amaran kebakaran ke balai bomba terdekat dan pemasangannya.
ALAMAT JABATAN BOMBA DAN PENYELAMAT YANG BERKENAAN Adalah saya memperakui bahawa bahan-bahan sistem alat-alat iaitu. Ppgbaziznsppgbazizns Tujuan Untuk memberi perlindunganUntuk memberi perlindungan secukupnya dari bahayasecukupnya dari bahaya kebakaran kepada penghuni-kebakaran kepada penghuni- penghuni bangunan danpenghuni bangunan dan mengurangkan kemusnahanmengurangkan kemusnahan kepada. 03 7729 4444 7729 2406.
03 7729 2341. Semua projek selain daripada di bawah kuasa Ibu Pejabat JBPM ii. Kategori pemprosesan dikuatkuasa melalui Perintah Tetap Pencegah Dan Keselamatan Kebakaran Bilangan 1 Tahun 2007.
Yang pertama pastikan buah pili bomba jenis tiang pengeluaran dua hala dengan pengeluaran air sebanyak 1000 liter seminit bagi setiap pili bomba sepertimana yang ditandakan didalam pelan. Pelan lukisan dan pengiraan bagi semua pemasangan tetap hendaklah dikemukakan ke Jabatan Bomba dan Penyelamat Malaysia. Menggubal piawaian dan kod-kod amali bersama-sama dengan agensi-agensi berkaitan keselamatan kebakaran kebombaan alat kelengkapan reka bentuk bangunan dan.
Sebanyak 50 buah rumah di kampung sumpitan lenggong dilanda banjir berikutan hujan lebat petang tadi. Seterusnya pemeriksaan akan di aturkan sebelum pengeluaran sijil perakuan bomba. Pangsapuri 110 m² dengan 3 bilik tidur dan 2 bilik mandi peribadi di kampung si rusa.
Semua premis ditetapkan perlu mempunyai sijil perakuan bomba yang dikeluarkan oleh Jabatan Bomba dan Penyelamat Malaysia. Perlaksanaan Kaedah Pusat Setempat One Stop Center dan Pengeluaran Perakuan Siap Dan. Balai bomba Selangau yang dianggarkan bernilai RM6 juta sekarang ini dalam proses rekabentuk dan proses tender akan dilaksanakan pada pertengahan Mei 2017.
Pili bomba sediada hendaklah dalam jarak 915 meter dari bangunan cadangan dan berada dalam keadaan baik. 2122019 htr ke ibu pjbt jkr trg tgkt 10 wisma negeri ktrg. Sijil perakuan bomba baru akan dikeluarkan jika membuat pembayaran manakala sijil perakuan bomba pindaan dikeluarkan jika tidak membuat pembayaran.
Sila pastikan juga jalan akses perkakas bomba access road dengan kelebaran tidak kurang 6 meter yang boleh menanggung beban 25 tan sepertimana yang ditandakan didalam pelan dan tulisan perkataan berwarna kuning LALUAN JENTERA BOMBA. Kalau korang bercuti atau berjalan-jalan ke George Town Pulau Pinang jangan lupa untuk singgah ke bangunan Balai Bomba dan Penyelamat Lebuh Pantai yang ada di situ. Kos bina rumah 4 bilik 30 pelan rumah banglo setingkat 4 bilik moden minimalis.
Cadangan konsep rekabentuk Pelan konsep penanaman Penyediaan Laporan Pelan Konsep. Kategori pemprosesan dikuatkuasa melalui Perintah Tetap Pencegah Dan Keselamatan Kebakaran Bilangan 1 Tahun 2007. Cadangan projek pembinaan balai bomba dan penyelamat malaysia knerus trg-t1bumiputeragredg5 kategorib pengkhususanb04 tarikh jual11112019-25112019 di ibu pjbt jkr trg tgkt 10 wisma negeri ktrg hargarm31000 atas nama pengarah jkr trg tarikh tutup tender.
Balai Bomba dan Penyelamat Bandar Baru Bangi Jalan Kemajuan Seksyen 16 43650 Bandar Baru Bangi Selangor. Unit Pusat Setempat OSC MBS wajib 2. Satu cara yang terbaik digunakan ialah dimana alat pengesan disambungkan terus ke panel fire alarm di bangunan kemudiannya disambungkan ke Balai Bomba yang paling hampir.
225 mm melebihi paras bumbung atau mematuhi rekabentuk yang dipersetujui oleh Jabatan Bomba dan Penyelamat Malaysia. FIRE ALARM SYSTEM Berbagai cara digunakan untuk menyesuaikan penggera kebakaran. JBPMPPBKK700-11132 bertarikh 3 September 2014 i.
Balai Bomba itu dijenama semula sebagai Central Fire Station 1908 mengikut Pelan Kawasan Khas Tapak Warisan Dunia George. Siri Pintu Rintangan Api Alat-alat Bahan Sistem Binaan Bagi premis di atas telah dijalankan diawasi oleh saya kami agen yang berhak penyelia dan mengikut Sijil Jabatan Bomba dan Penyelamat Malaysia No. Pihak jabatan akan menyemak pelan yang dikemukakan dan menurunkan sijil perakuan ke atas pelan cadangan.

Belum ada Komentar untuk "Rekabentuk Pelan Balai Bomba"
Posting Komentar